Bought with Better Homes & Gardens Real Estate/The Masiello Group
For more information regarding the value of a property, please contact us for a free consultation.
Key Details
Sold Price $404,000
Property Type Residential
Sub Type Single Family Residence
Listing Status Sold
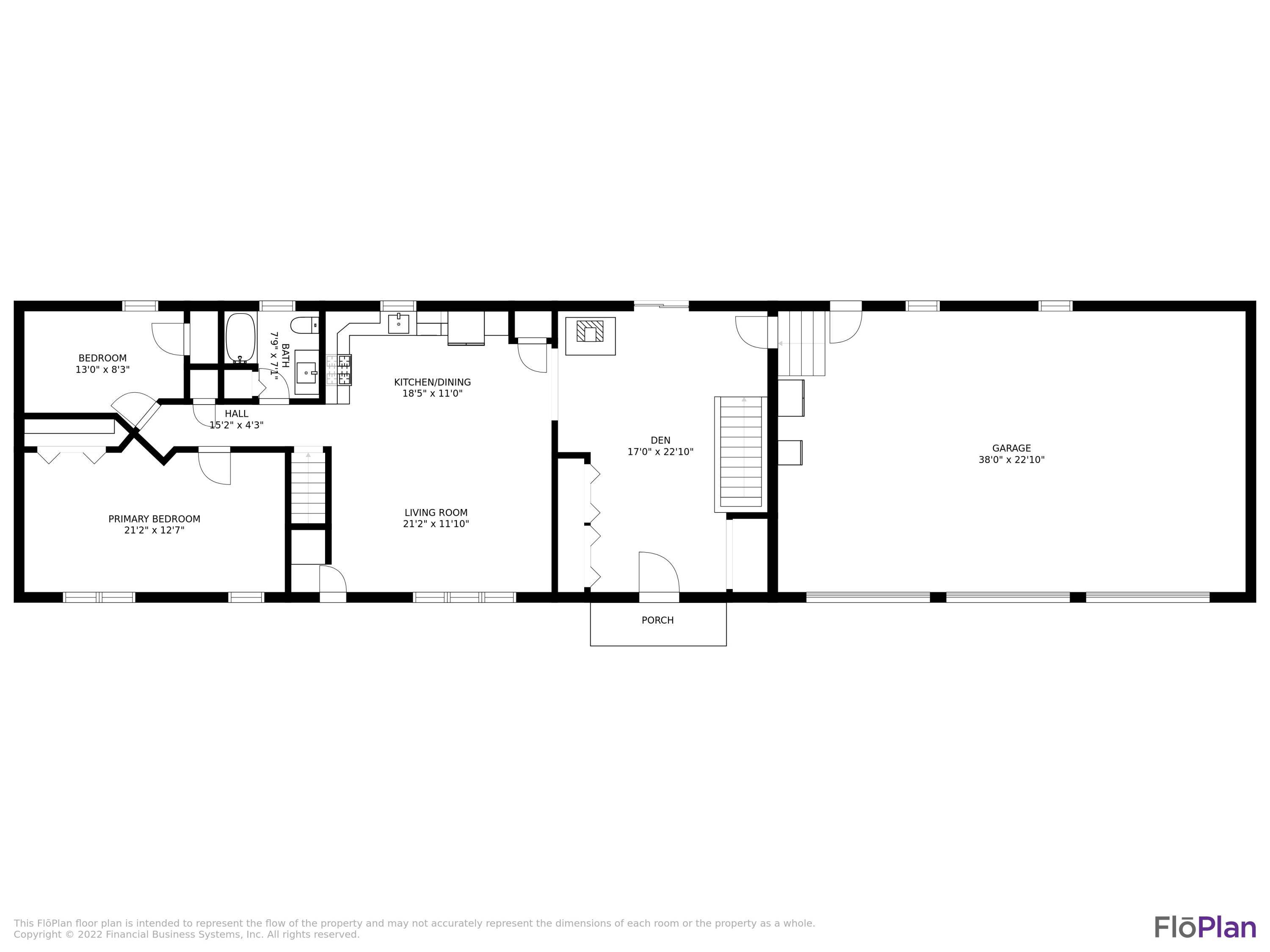
Square Footage 2,035 sqft
MLS Listing ID 1523175
Style Ranch
Bedrooms 4
Full Baths 2
Year Built 2008
Annual Tax Amount $2,899
Tax Year 2021
Lot Size 2.010 Acres
Property Sub-Type Single Family Residence
Property Description
OPEN HOUSE SAT 4/2 AND SUN 4/3 10 AM TO 12 PM. Come see this spacious 2008 expanded ranch with recent renovations and the three car garage of your dreams. First floor has an open concept kitchen and living room with vaulted ceiling, expanded primary bedroom, second bedroom and updated bath. Light and bright with oversized windows, new flooring and trim through out. Lower level offers two more bedrooms and huge bath with laundry and double sinks. Lower level also has a mechanicals room with 2019 Bosch boiler, a workshop and additional storage room. Backyard offers a paver patio, firepit, above ground pool and dog fence. Sited on 2 acres on a quiet private road, but near major routes. Home at last!
Location
State ME
County York
Zoning Standard
Rooms
Kitchen Vaulted Ceiling12, Eat-in Kitchen
Interior
Heating Multi-Zones, Hot Water, Direct Vent Furnace, Baseboard
Cooling None
Exterior
Parking Features 11 - 20 Spaces, Gravel, Garage Door Opener, Inside Entrance
Garage Spaces 3.0
Pool Above Ground
View Y/N Yes
View Trees/Woods
Roof Type Pitched,Shingle
Building
Lot Description Level, Wooded, Near Town, Rural
Foundation Concrete Perimeter
Sewer Private Sewer, Septic Existing on Site
Water Private, Well
Structure Type Vinyl Siding,Wood Frame
Schools
School District Rsu 60/Msad 60
Read Less Info
Want to know what your home might be worth? Contact us for a FREE valuation!

Our team is ready to help you sell your home for the highest possible price ASAP





